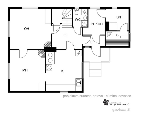
Mh, oloh, k, et, wc, pukuh, kph, s, vintti, 65.0 m², 35 000 €
Omakotitalo, Pomarkku, Honkakoski, Vanhantalontie 15
Siistikuntoinen, mummonmökkimäisiäkin piirteitä omaava talo Honkakoskella. Asuinpinta-ala noin 65 neliötä, käsittäen makuuhuoneen, olohuoneen ja keittiön sekä laajennusosaan rakennetun saunaosaston. Kolme tulisijaa, joista yksi kaipaa korjausta. Mm. vesikatto, käyttövesiputket ja sähköistys uusittu. 3400 neliön aurinkoisella tontilla tallirakennus, talousrakennus, aittarakennus ja varastorakennus, joista varsinkin tallirakennus tarjoaa monikäyttöistä tilaa. Lyhyt matka asfaltoidulle Honkakoskentielle. Kiva paikka maaseudun rauhassa - tule tutustumaan!
Perustiedot
| Sijainti: | Pomarkku Honkakoski |
| Tyyppi: | omakotitalo |
| Velaton hinta: | 35 000 € |
| Myyntihinta: | 35 000 € |
| Kiinteistötunnus | |
| Vapautuminen: | |
| Rakennusvuosi: | |
| Asuinpinta-ala: | |
| Kerrosala: |
| Yleiskunto: | tyydyttävä |
| Huoneluku: | kaksio |
| Kerros: | 1 / 1 |
| Tontin omistus | oma |
| Tontin pinta-ala | 3420 |
| Kaavoitustilanne | kaavoittamaton |
| Muut tilat: | |
| Rakennukset | |
| Lisätietoja |
Lisätiedot
Kustannukset ja rasitukset
Kunto ja varustus
Yhteydet ja palvelut
Muut tiedot
Muut tiedot
tie perille, sähköliittymä siirtyy, antenni
Ilmanvaihtojärjestelmä
painovoimainen
Jääkaappi ja pakastin
jääkaappi
Keittiön lattiamateriaali
muovi
Keittiön seinien materiaali
maalattu
Keittiön työtasojen materiaali
laminaatti
Kiinteistön vesijohto
kunnan, kaivo
Kodinhoitoh. lattiamateriaali
muovi
Kodinhoitoh. seinämateriaali
maalattu
Kylpyhuoneen lattiamateriaali
laatta
Kylpyhuoneen seinämateriaali
kaakeli
Kylpyhuoneen varustus
suihku
Liesi
sähköliesi, leivinuuni, puuliesi
Lisätieto-ominaisuudet
oma sauna
Lämmitysjärjestelmä
puu, sähkö
Lämmön jakotapa
sähköpatterilämmitys, uuni/takka
Makuuhuoneen lattiamateriaali
muovi
Makuuhuoneen seinämateriaali
maalattu
Muut säilytystilat
ulkovarasto
Olohuoneen lattiamateriaali
muovi
Olohuoneen seinämateriaali
maalattu
Rakennusmateriaali
puu
Saunan lattiamateriaali
laatta
Saunan seinämateriaali
puu
Takkatiedot
takka
Viemäri
saostuskaivo
WC:n lattiamateriaali
laatta
WC:n seinämateriaali
kaakeli
