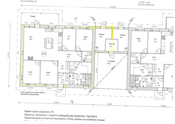
5h+k+ph+s+2wc+var+a-katos, 110.0 m², Vh. 239 000 € / Mh. 239 000 €
Paritalo, Pori, Pietniemi, Ruusutie 11
Siistikuntoinen vuonna 2015 valmistunut paritalokiinteistö. Siporex-runkoinen kivitalo omalla tontilla. Todella edulliset asumiskulut (800 euroa/vuosi) maalämpö vesikiertoinen lattialämmitys. 4 makuuhuonetta, Olohuoneessa varaava takka. Lämmin varastotila ja autokatos. Sovi oma esittelyaikasi Jukka Andersson 0408400232
Perustiedot
| Sijainti: | Pori Pietniemi |
| Huoneisto: | Ruusutie 11 |
| Tyyppi: | paritalo |
| Velaton hinta: | 239 000 € |
| Myyntihinta: | 239 000 € |
| Hoitovastike | |
| Rahoitusvastike |
| Vapautuminen: | |
| Rakennusvuosi: | |
| Yleiskunto: | tyydyttävä |
| Asuinpinta-ala: | 110.0 m² |
| Huoneluku: | 5 h |
| Kerros: | 1 / 1 |
Esittelyt ja lisätiedot
Lisätiedot
Kustannukset
Kunto ja varustus
Taloyhtiön tiedot
Yhteydet ja palvelut
Muut tiedot
Muut tiedot
tie perille, sähköliittymä siirtyy
Ilmanvaihtojärjestelmä
koneellinen tulo, koneellinen poisto, lämmön talteenotto
Jääkaappi ja pakastin
jääkaappi/pakastin
Keittiön lattiamateriaali
vinyyli
Kiinteistön vesijohto
kunnan
Kodinhoitoh. lattiamateriaali
laatta
Kodinhoitoh. varustus
pesukoneliitäntä, lattialämmitys
Kylpyhuoneen lattiamateriaali
laatta
Kylpyhuoneen seinämateriaali
kaakeli
Kylpyhuoneen varustus
suihku
Lisätieto-ominaisuudet
oma sauna
Lämmitysjärjestelmä
maalämpö
Lämmön jakotapa
vesikiertoinen lattialämmitys, uuni/takka
Makuuhuoneen lattiamateriaali
laminaatti
Olohuoneen lattiamateriaali
vinyyli
Rakennusmateriaali
kivi
Saunan lattiamateriaali
laatta
Saunan seinämateriaali
puu
Takkatiedot
takka
Viemäri
kunnan
WC:n lattiamateriaali
laatta
WC:n seinämateriaali
kaakeli
