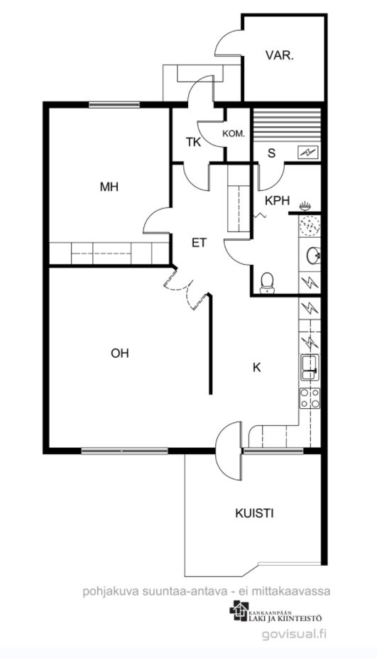
Oloh, mh, k, kph, s, terassi, 60.0 m², Vh. 58 700 € / Mh. 58 700 €
Rivitalo, Pomarkku, Keskusta, Saarentie 3
Hyväkuntoinen, valoisa rivitaloasunto, kivalla paikalla jokimaisemissa. Syyskuussa 2025 asunnossa valmistunut remontti, jossa uusittu kylpyhuone, sauna ja asuintilojen lattiapinnoitteet. Aikaisemmin asennettu sähkölämmityksen avuksi ilmalämpöpumppu. Tilavat asuinhuoneet. Takapihalla, ilta-auringon suunnassa, lasitettu terassi. Asunnon edessä ulkovarasto. Hyvin hoidettu, rauhallinen yhtiö. Heti vapaa. Tule tutustumaan!
Perustiedot
| Sijainti: | Pomarkku Keskusta |
| Huoneisto: | Saarentie 3 C 11 |
| Tyyppi: | rivitalo |
| Velaton hinta: | 58 700 € |
| Myyntihinta: | 58 700 € |
| Hoitovastike | |
| Rahoitusvastike |
| Vapautuminen: | |
| Rakennusvuosi: | |
| Yleiskunto: | hyvä |
| Asuinpinta-ala: | 60.0 m² |
| Huoneluku: | kaksio |
| Kerros: | 1 / 1 |
Esittelyt ja lisätiedot
Lisätiedot
Kustannukset
Kunto ja varustus
Taloyhtiön tiedot
Yhteydet ja palvelut
Muut tiedot
Muut tiedot
antenni
Autopaikka
sähköpistoke
Jääkaappi ja pakastin
jääkaappi/pakastin
Keittion muut varusteet
liesituuletin, astianpesukone
Keittiön lattiamateriaali
vinyyli
Keittiön seinien materiaali
tapetti
Keittiön työtasojen materiaali
laminaatti
Kylpyhuoneen lattiamateriaali
laatta
Kylpyhuoneen seinämateriaali
kaakeli
Kylpyhuoneen varustus
pesukoneliitäntä, lattialämmitys, wc-istuin, suihku, peilikaappi
Liesi
sähköliesi
Lisätieto-ominaisuudet
oma sauna
Lämmitysjärjestelmä
sähkö
Makuuhuoneen lattiamateriaali
vinyyli
Makuuhuoneen seinämateriaali
tapetti
Muu varustus
ilmalämpöpumppu
Muut säilytystilat
ulkovarasto
Olohuoneen lattiamateriaali
vinyyli
Olohuoneen seinämateriaali
maalattu, tapetti
Rakennusmateriaali
puu
Saunan lattiamateriaali
laatta
Saunan seinämateriaali
puu
