Hallitila, toimisto/sosiaalitila, kph, 104.5 m²,
Tuotantotila, Pomarkku, Kirkonkylä, Kiilholmantie 15
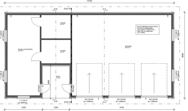
Myydään huutokaupalla, huutokaupat.com-sivulla! Vuonna 2020 valmistunut halli-asuinkiinteistö Kiilholmantiellä. Rakennuksen kerrosala 132,5 neliötä ja huoneistoala 104,5. Rakennuksessa moneen käyttötarkoitukseen soveltuva noin 70 neliön hallitila, sekä toimisto ja sosiaalitilat noin 35 neliötä. Hallitilassa kolme sähkötoimista nosto-ovea. Vesikiertoinen lattialämmitys, jossa lämmönlähteenä ilmavesilämpöpumppu. 2670 neliön tontilla lisäksi vuonna 2020 valmistunut talousrakennus, jonka pinta-ala 51 neliötä. Toisella kiinteistöllä vanha asuinrakennus ja saunarakennus. Kiinteistöjen pinta-ala yhteensä 4510 neliötä. Hyvä tila yrittäjälle tai muuten "touhutilaa" tarvitsevalle. Tule tutustumaan! Huutoaika päättyy sunnuntaina 21.12, klo 18. Kaupankäynti tapahtuu täällä: https://huutokaupat.com/kohde/5895114/vuonna-2020-valmistunut-hallirakennus
Perustiedot
| Sijainti: | Pomarkku Kirkonkylä |
| Tyyppi: | tuotantotila |
| Kiinteistötunnus | |
| Vapautuminen: | |
| Rakennusvuosi: | |
| Asuinpinta-ala: | |
| Kerrosala: |
| Yleiskunto: | tyydyttävä |
| Huoneluku: | ei luokiteltu |
| Kerros: | 1 / 1 |
| Tontin omistus | oma |
| Tontin pinta-ala | 4510 |
| Kaavoitustilanne | asemakaavayleiskaava |
| Muut tilat: | |
| Rakennukset | |
| Lisätietoja |
Esittelyt ja lisätiedot
Lisätiedot
Kustannukset ja rasitukset
Kunto ja varustus
Taloyhtiön tiedot
Yhteydet ja palvelut
Muut tiedot
Muut tiedot
tie perille, sähköliittymä siirtyy
Ilmanvaihtojärjestelmä
koneellinen poisto
Kiinteistön vesijohto
kunnan
Kylpyhuoneen lattiamateriaali
laatta
Kylpyhuoneen seinämateriaali
kaakeli, maalattu
Kylpyhuoneen varustus
lattialämmitys, wc-istuin, suihku
Lämmitysjärjestelmä
ilmavesilämpöpumppu
Lämmön jakotapa
vesikiertoinen lattialämmitys
Rakennusmateriaali
puu
Viemäri
kunnan
