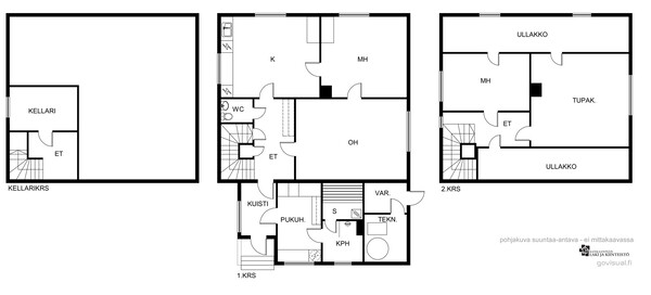
3mh, oloh, k, wc, pukuh/khh, kph, s, terassi, kellari, 110.0 m², 83 000 €
Omakotitalo, Kankaanpää, Honkajoki, Karviantie 488
Maatilan talouskeskus Karviantien varrella, Honkajoella. Hyvin hoidetun asfalttitien varrella vuonna 1958 valmistunut ja vuonna 1986 laajennettu omakotitalo. Taloon tehty säännöllisesti remonttia ja sitä on muutenkin asuttu huolellisesti. Viimeisimpänä remontti käyttövesi- ja lämmitysputkien, ml. patterien uusiminen. Tätä ennen vaihdettu lämmitysmuoto ilmavesilämpöpumppuun sekä uusittu mm. vesikatto ja ikkunat. Valoisat asuintilat. Kolme makuuhuonetta. Edulliset asumiskulut, vuosittainen sähkönkulutus noin 12.000 kWh. Pihapiirissä irtioton arjesta tarjoaa katettu ja lämmitettävä uima-allas sekä pihasauna. Ryhdikkäässä, tiilirunkoisessa navettarakennuksessa tilaa noin 220 neliön verran. Lisäksi suulirakennus. Hyvin hoidettu kokonaisuus, jossa tontin pinta-ala noin 1,5ha (määräala). Valokuituliittymä. Tervetuloa tutustumaan!
Perustiedot
| Sijainti: | Kankaanpää Honkajoki |
| Tyyppi: | omakotitalo |
| Velaton hinta: | 83 000 € |
| Myyntihinta: | 83 000 € |
| Kiinteistötunnus | |
| Vapautuminen: | |
| Rakennusvuosi: | |
| Asuinpinta-ala: | |
| Kerrosala: |
| Yleiskunto: | tyydyttävä |
| Huoneluku: | 5 h |
| Kerros: | 2 / 2 |
| Tontin omistus | oma |
| Tontin pinta-ala | 1.5 |
| Kaavoitustilanne | kaavoittamaton |
| Muut tilat: | |
| Rakennukset | |
| Lisätietoja |
Lisätiedot
Kustannukset ja rasitukset
Kunto ja varustus
Yhteydet ja palvelut
Muut tiedot
Muut tiedot
tie perille, sähköliittymä siirtyy, antenni
Ilmanvaihtojärjestelmä
painovoimainen
Jääkaappi ja pakastin
jääkaappi
Keittion muut varusteet
liesituuletin, astianpesukone
Keittiön lattiamateriaali
muovi
Keittiön seinien materiaali
maalattu, puu
Kiinteistön vesijohto
porakaivo
Kodinhoitoh. lattiamateriaali
muovi
Kodinhoitoh. seinämateriaali
maalattu
Kodinhoitoh. varustus
pesukoneliitäntä
Kylpyhuoneen lattiamateriaali
laatta
Kylpyhuoneen seinämateriaali
kaakeli
Kylpyhuoneen varustus
suihku
Liesi
keraaminen liesi
Lisätieto-ominaisuudet
oma sauna
Lämmitysjärjestelmä
ilmavesilämpöpumppu
Lämmön jakotapa
vesikiertoinen patterilämmitys, uuni/takka, ilmalämpöpumppu
Makuuhuoneen lattiamateriaali
muovi, laminaatti
Makuuhuoneen seinämateriaali
maalattu
Muu varustus
lämminvesivaraaja, ilmalämpöpumppu
Muut säilytystilat
vaatehuone
Olohuoneen lattiamateriaali
laminaatti
Olohuoneen seinämateriaali
maalattu
Rakennusmateriaali
puu
Saunan lattiamateriaali
laatta
Saunan seinämateriaali
puu
Takkatiedot
takka
Viemäri
saostuskaivo
WC:n lattiamateriaali
muovi
WC:n seinämateriaali
maalattu
WC:n varustus
peilikaappi
