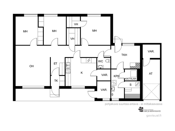
3mh, oloh, k, takkah, wc, kph, s, at, 2var, 115.0 m², 77 000 €
Omakotitalo, Kankaanpää, Mettälänkangas, Raamikatu 5
Erittäin siistikuntoinen, kaukolämmitteinen omakotitalo Mettälänkankaalla. Vuonna 1977 valmistunut talo, jossa kolmen makuuhuoneen lisäksi olohuone ja takkahuone. Hyvät säilytystilat, kaksi varastoa, vaatehuone sekä nosto-ovella varustettu autotalli. Aurinkoinen takapiha, etupiha laatoitettu. Edulliset asumiskulut, vuosittaiset lämmityskulut ovat olleet alle 2000 euroa. Kiva, rauhallinen sijainti, josta lyhyt matka koulu- ja liikuntakeskuksiin. Vapautuu nopeasti. Tervetuloa tutustumaan!
Perustiedot
| Sijainti: | Kankaanpää Mettälänkangas |
| Tyyppi: | omakotitalo |
| Velaton hinta: | 77 000 € |
| Myyntihinta: | 77 000 € |
| Kiinteistötunnus | |
| Vapautuminen: | |
| Rakennusvuosi: | |
| Asuinpinta-ala: | |
| Kerrosala: |
| Yleiskunto: | tyydyttävä |
| Huoneluku: | 5 h |
| Kerros: | 1 / 1 |
| Tontin omistus | oma |
| Tontin pinta-ala | 772 |
| Kaavoitustilanne | asemakaava |
| Muut tilat: | |
| Rakennukset | |
| Lisätietoja |
Lisätiedot
Kustannukset ja rasitukset
Kunto ja varustus
Yhteydet ja palvelut
Muut tiedot
Muut tiedot
tie perille, kaapeli-tv, sähköliittymä siirtyy
Ilmanvaihtojärjestelmä
painovoimainen
Jääkaappi ja pakastin
jääkaappi, kylmiö
Keittion muut varusteet
liesituuletin, astianpesukone
Keittiön lattiamateriaali
parketti
Keittiön seinien materiaali
maalattu
Keittiön työtasojen materiaali
laminaatti
Kiinteistön vesijohto
kunnan
Kylpyhuoneen lattiamateriaali
laatta
Kylpyhuoneen seinämateriaali
kaakeli
Kylpyhuoneen varustus
pesukoneliitäntä, lattialämmitys, suihku
Liesi
sähköliesi
Lisätieto-ominaisuudet
oma sauna
Lämmitysjärjestelmä
kauko
Lämmön jakotapa
vesikiertoinen patterilämmitys, uuni/takka, ilmalämpöpumppu
Makuuhuoneen lattiamateriaali
parketti
Makuuhuoneen seinämateriaali
maalattu, tapetti
Muu varustus
ilmalämpöpumppu
Muut säilytystilat
vaatehuone, ulkovarasto
Olohuoneen lattiamateriaali
parketti
Olohuoneen seinämateriaali
maalattu, tapetti
Rakennusmateriaali
puu, tiili
Saunan lattiamateriaali
laatta
Saunan seinämateriaali
puu
Takkatiedot
takka
Viemäri
kunnan
WC:n lattiamateriaali
laatta
WC:n seinämateriaali
kaakeli
WC:n varustus
peilikaappi
