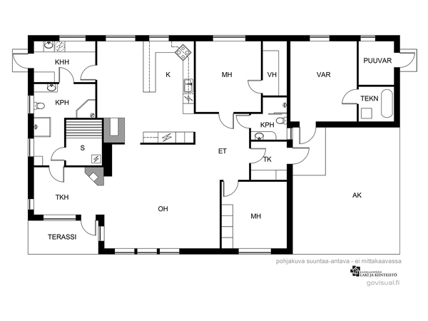
2mh, takkah, oloh, k, wc, kph, s, khh, var, tekninen tila, autokatos, 151.0 m², 125 000 €
Omakotitalo, Pori, Lavia, Soronpelto 4
Hyväkuntoinen, valoisa omakotitalo Lavian keskustan tuntumassa. Kahdesta tilasta muodostuvan alueen pinta-ala yhteensä noin 4600 neliötä. Toisella tontilla vuonna 1992 valmistunut valkotiilinen, hyvin pidetty omakotitalo. Asuinpinta-ala 151 tarjoaa avarat viihtyisät asuintilat. Hiljattain remontoitu keittiö, tyylikäs saunaosasto, lisäksi uusittu asuintilojen pinnoitteet. Keskuslämmitys (öljy), joka jakautuu tasaisesti lattialämmityksen avulla, lisäksi kaksi varaavaa tulisijaa ja ilmalämpöpumppu. Talon päädyssä autokatos ja lämmin varasto. Toisella tontilla varastorakennus ja hyvin hoidettu nätti koivikko. Paljon rakennusoikeutta vielä jäljellä. Hieno kokonaisuus tarjolla. Tervetuloa tutustumaan!
Perustiedot
| Sijainti: | Pori Lavia |
| Tyyppi: | omakotitalo |
| Velaton hinta: | 125 000 € |
| Myyntihinta: | 125 000 € |
| Kiinteistötunnus | |
| Vapautuminen: | |
| Rakennusvuosi: | |
| Asuinpinta-ala: | |
| Kerrosala: |
| Yleiskunto: | hyvä |
| Huoneluku: | 4 h |
| Kerros: | 1 / 1 |
| Tontin omistus | oma |
| Tontin pinta-ala | 4590 |
| Kaavoitustilanne | asemakaava |
| Muut tilat: | |
| Rakennukset | |
| Lisätietoja |
Lisätiedot
Kustannukset ja rasitukset
Kunto ja varustus
Yhteydet ja palvelut
Muut tiedot
Muut tiedot
tie perille, kulku suoraan ulos, antenni
Ilmanvaihtojärjestelmä
koneellinen tulo, koneellinen poisto, lämmön talteenotto
Jääkaappi ja pakastin
jääkaappi
Keittion muut varusteet
liesituuletin, astianpesukone
Keittiön lattiamateriaali
laminaatti
Keittiön seinien materiaali
maalattu, tapetti
Keittiön työtasojen materiaali
laminaatti
Kiinteistön vesijohto
kunnan, kaivo
Kodinhoitoh. lattiamateriaali
laatta
Kodinhoitoh. seinämateriaali
maalattu
Kodinhoitoh. varustus
pesukoneliitäntä, lattialämmitys
Kylpyhuoneen lattiamateriaali
laatta
Kylpyhuoneen seinämateriaali
kaakeli
Kylpyhuoneen varustus
kylpyamme, lattialämmitys, wc-istuin, suihku
Liesi
keraaminen liesi, leivinuuni
Lisätieto-ominaisuudet
oma sauna
Lämmitysjärjestelmä
öljy, sähkö, ilmalämpöpumppu
Lämmön jakotapa
vesikiertoinen lattialämmitys, uuni/takka, ilmalämpöpumppu
Makuuhuoneen lattiamateriaali
laminaatti
Makuuhuoneen seinämateriaali
maalattu, tapetti
Muu varustus
ilmalämpöpumppu
Muut säilytystilat
vaatehuone, ulkovarasto
Olohuoneen lattiamateriaali
parketti
Olohuoneen seinämateriaali
maalattu, tapetti
Rakennusmateriaali
puu, tiili
Saunan lattiamateriaali
laatta
Saunan seinämateriaali
puu
Takkatiedot
takka
Viemäri
kunnan
WC:n lattiamateriaali
laatta
WC:n seinämateriaali
kaakeli
WC:n varustus
lattialämmitys, suihkuseinä, peilikaappi
