5 liiketilaa, toimisto-/arkistotila, lämpökeskus, autotalli, 836.0 m²,
Liiketila, Karvia, Keskusta, Kylä-Karviantie 34
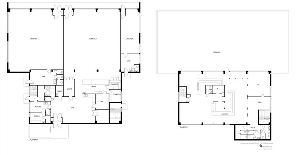
Hyvin hoidettu liikekiinteistö Karvian keskustassa. Vankkarakenteinen, vuonna 1983 valmistunut rakennus, jonka kerrosala noin 1020 neliötä. Kaikki tilat vuokrattu - hyvä vuokratuotto! Tiloissa yhteensä viisi eri vuokralaista. Tarkemmat vuokratiedot, saat erikseen kysymällä. Rakennuksessa tiloja kolmessa eri kerroksessa. Katutasossa tällä hetkellä hieman pohjapiirustuksesta poiketen neljä liiketilaa. Toisessa kerroksessa yksi, ravintolakäytössä oleva tila, jonka yhteydessä suuri kattoterassi. Ylimmässä kerroksessa ravintolan käytössä olevaa tilaa. Kaikki tilat siistissä ja käyttötarkoitukseensa soveltuvassa kunnossa. Keskuslämmitys. Koneellinen poistoilma. Edessä hyvät parkkitilat. Tervetuloa tutustumaan!
Perustiedot
| Sijainti: | Karvia Keskusta |
| Tyyppi: | liiketila |
| Kiinteistötunnus | |
| Vapautuminen: | |
| Rakennusvuosi: | |
| Asuinpinta-ala: | |
| Kerrosala: |
| Yleiskunto: | tyydyttävä |
| Huoneluku: | ei luokiteltu |
| Kerros: | 2 / 2 |
| Tontin omistus | oma |
| Tontin pinta-ala | 2500 |
| Kaavoitustilanne | asemakaava |
| Muut tilat: | |
| Rakennukset | |
| Lisätietoja |
Esittelyt ja lisätiedot
Lisätiedot
Kustannukset ja rasitukset
Kunto ja varustus
Taloyhtiön tiedot
Yhteydet ja palvelut
Muut tiedot
Muut tiedot
tie perille
Ilmanvaihtojärjestelmä
koneellinen poisto
Kiinteistön vesijohto
kunnan
Lämmitysjärjestelmä
öljy
Lämmön jakotapa
vesikiertoinen patterilämmitys, ilmalämpöpumppu
Nettiliittymä
valokuitu
Rakennusmateriaali
tiili, elementti
Viemäri
kunnan
